
Apartamento Paulista I
Apartamento Paulista I
Reforma do apartamento do Marco e da Anna, em São Paulo
O apartamento localiza-se próximo à Avenida Paulista, em São Paulo e os moradores já moravam no imóvel quando decidiram que era hora de uma reforma.
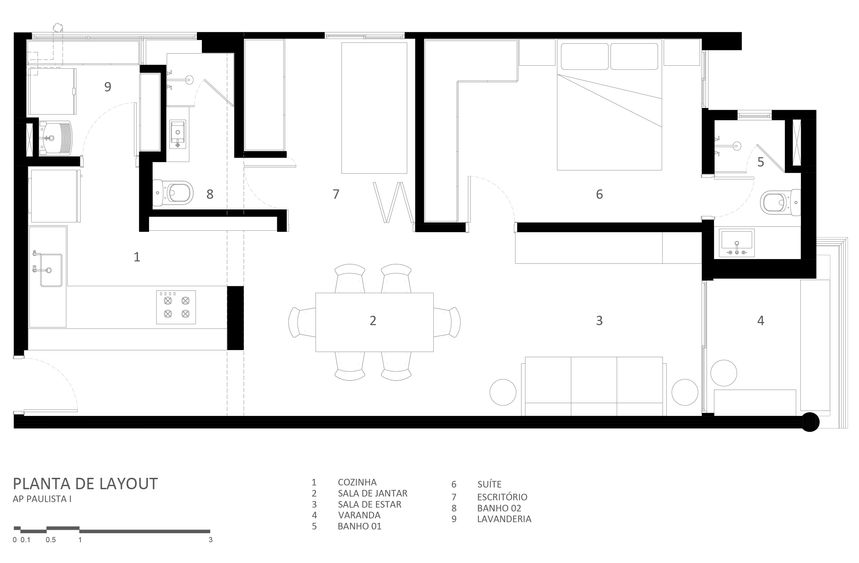
A busca por amplitude de espaços e maior entrada de iluminação natural foram as demandas principais e também norteadoras do projeto. Anna adora cozinhar e sentia falta de ter uma cozinha mais aberta que permitisse conversar com os amigos enquanto preparava os alimentos. Outra demanda do casal foi a criação de mais uma suíte e que essa pudesse ser aberta quando não houvesse hóspedes, ampliando ainda mais a área social do apartamento.
No entanto, ao analisarmos a planta estrutural do edifício nos deparamos com um pilar que separava a cozinha da sala e aparentemente sem a possibilidade de conexão com as demais áreas. Ao desenvolver o projeto percebemos que a entrada (corredor) era uma área que poderia ser aproveitada não apenas como espaço de transição entre a rua e o apartamento mas também como um espaço que criaria essa ligação que Anna tanto queria.
A planta então partiu para uma otimização da lavanderia com marcenaria sob medida para criação de um novo banheiro e a cozinha que antes era estreita e fechada configurou-se em L, com um grande balcão para o corredor de entrada.
A nova suíte quando aberta, ficou integrada a sala e o novo banheiro ganhou também a função de lavabo para visitas.



















