
Apartamento Pompeia I
Reforma de apartamento, em São Paulo.
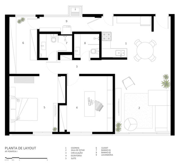
Localizado na Pompeia, zona oeste de São Paulo, o apartamento passou por uma reforma em 2013 que lhe trouxe mais personalidade e integração. Buscamos imprimir fluidez aos ambientes, especialmente entre a sala de estar e a cozinha, de forma que elas constituíssem uma única área social.
Construção econômica
Como tornar os espaços mais integrados era uma das principais propostas do projeto, utilizamos um único piso em todo o apartamento, o granilite. "Feito na obra e com juntas muito discretas, esse piso reforça a ideia de amplitude, claridade e unificação”. Além disso, o uso de um piso inteiro dispensou a contratação e o gerenciamento de outros serviços, como marmoraria para as baguetes, rejuntes para aplicação e mão de obra específica para o assentamento, deixando a construção mais econômica e a manutenção mais simples.
Eficiência energética
A iluminação do apartamento é quase totalmente indireta, com exceção dos spots da cozinha, que foram usados para tornar a área de trabalho mais iluminada. No entanto, como o imóvel é muito claro, durante o dia a luz natural é suficiente.
Local: SP, Brasil
Início do projeto: 2013
Conclusão da obra: 2013
Área: 93 m²


A planta do imóvel, com 93m² era originalmente formada por três quartos, sala, banheiro social, cozinha, lavanderia e banheiro de serviço. Com a reforma, foram demolidas as paredes e os vãos, mas sem fazer mudança estrutural.
Eliminamos o banheiro da lavanderia e redimensionamos o principal, para termos dois de tamanhos confortáveis. Um deles foi incorporado ao quarto central e o outro ficou para a área social.
O projeto buscou manter a circulação contínua ao redor dos banheiros interligando área social, íntima e de serviço, e eliminar a barreira física que separava cozinha e sala.





Com o início da obra, foram descobertos tijolos maciços usados na construção do edifício. Logo tivemos a ideia de deixá-los aparentes, e a partir disso escolhemos os demais acabamentos.
As vigas e o pilar de concreto também foram expostos seguindo a proposta de deixar à mostra detalhes da construção do prédio.
Apenas as paredes do box do banheiro receberam revestimento em pastilha de cerâmica. O que sobrou do material foi aplicado ao redor do tanque.




“O tijolo já existia, só aplicamos a mesma resina do piso para evitar o esfarelamento do próprio do material. Na verdade, foi a única solução que encontramos para manter a cor original dele e não dar brilho como um verniz”.








